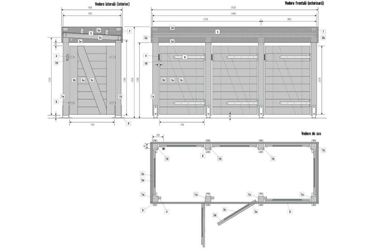
Mai întâi, stabiliți locația pentru coșul de gunoi. Potrivit ar fi, de exemplu, o fundație de beton ca substructură. Măsurătoarea laturii mai lungi (a) este de 2580 mm, iar cea a laturii mai scurte (b) este de 920 mm – măsurată de la marginea exterioară la marginea exterioară a stâlpilor verticali. Cele două diagonale (x) trebuie să fie egale pentru ca construcția să fie dreptunghiulară. Ancorati opt suporturi pentru stâlpi pe fundație, în care puteți înșuruba ulterior stâlpii.
Notă: Suporturile stâlpilor sunt mai înguste decât stâlpii. Prin urmare, cele patru suporturi pentru stâlpi din colțurile exterioare ale planului de etaj trebuie deplasate cu 20 mm pe linia (a), astfel încât cei patru stâlpi exteriori să se așeze exact în colțurile planului de etaj.











































