Căsuță de grădină Bertilo Cubo 3 Office cu podea 336x240 cm gri deschis
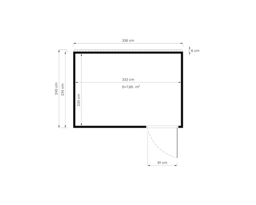
- Dimensiune lăţime x adâncime: 336 x 234 cm
- Grosime perete: 19 mm
- Greutate zăpadă: 1,6 kN/m²
- Comandăm pentru Dvs. - în magazin sau telefonic!
- Timp de livrare aprox. 3-4 săptămâni
Detalii produs
- Lăţime exterioară perete336 cm
- Lăţime exterioară incl. pazie336 cm
- Adâncime exterioară perete234 cm
- Adâncime exterioară incl. pazie240 cm
- Dimensiune lăţime x adâncime336 x 234 cm
- Suprafaţă de montare în mp7,9 m²
- Dimensiune interioară (lxa)333 cm x N/A
- Dimensiune interioară lăţime333 cm
- Volum construit16,4 m³
- Grosime perete19 mm
- Înălţime perete lateral222 cm
- Înălţime coamă231 cm
- ConstrucţieSistem de construcţie modulară
- PardosealăDa
- Suprafaţă perete exterior26 m²
- Suprafaţă acoperiş7,9 m²
- Grosime acoperiş19 mm
- Greutate zăpadă1,6 kN/m²
- Pazie faţă0 cm
- Pazie lateral0 cm
- Pazie spate5,8 cm
- Înclinare acoperiş2,2 °
- Material învelitoare acoperişFără
- Necesar şindrilă (pachet cu conţinut 3 m²)0
- Caracteristici-
- Tip produsCăsuţă de grădină
- ModelMagazie pentru echipamente
- Domeniu de utilizareHome Office
- Culoare de bazăGri
- NuanţăGri deschis
- Dotare de seriePardoseală, Ferestre
- SerieCubo
- Formă acoperişAcoperiş plat
- MaterialLemn
- Detalii materialRășinos
- Suprafață/tratare suprafațăPlacată
- Impregnat în autoclavăNu
- Număr de ferestre6 ferestre simple
- Număr de geamuri ce se pot deschide2
- Tip uşăUşă simplă
- Lăţime trecere91 cm
- Înălţime trecere186 cm
- Sticlă uşăSticlă sintetică
- Dotare de siguranţăÎncuietoarea cu butuc cilindric
- Număr încăperi1
- Greutate548 kg
- Cod scurt de produs (AKN)6UKW
- EAN4742686004991
Certificate & servicii
Fișe de date
Descriere
O cameră de grădină plină de lumină, cu un design modular simplu.
Elementele de perete și ușă pot fi poziționate flexibil. Ferestrele pivotante din pereții laterali pot fi deschise larg. Construcția cu structură din lemn asigură o stabilitate ridicată și permite izolarea ușoară a pereților, chiar și prin montare DIY. Include elemente de podea de înaltă calitate, rezistente la umiditate, fabricate din plăci MFP P5 cu suprafață antiderapantă. Ușă din lemn laminat cu încuietoare cu cilindru.
Siguranța produselor
Pentru informații cu privire la siguranța produselor, consultați .
Recenzii din partea clienților
Nu garantăm că toate recenziile provin de la persoane care au utilizat sau achiziționat acest produs. Pentru mai multe informații privind prelucrarea recenziilor, vă rugăm să consultați secțiunea corespunzătoare din Termeni și condiții generale.
