Magazie grădină Konsta Studio Set 2 pentru unelte cu podea 290x202 cm gri deschis
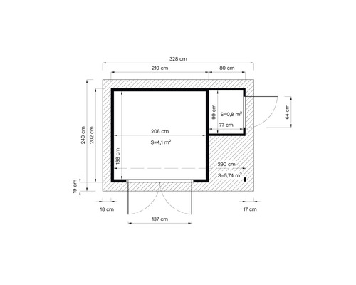
- Dimensiune lăţime x adâncime: 290 x 202 cm
- Grosime perete: 19 mm
- Greutate zăpadă: 1,6 kN/m²
- Comandăm pentru Dvs. - în magazin sau telefonic!
- Timp de livrare aprox. 3-4 săptămâni
Detalii produs
- Lăţime exterioară perete290 cm
- Lăţime exterioară incl. pazie328 cm
- Adâncime exterioară perete202 cm
- Adâncime exterioară incl. pazie240 cm
- Dimensiune lăţime x adâncime290 x 202 cm
- Suprafaţă de montare în mp5,85 m²
- Dimensiune interioară (lxa)207 cm x N/A
- Dimensiune interioară lăţime207 cm
- Volum construit10,65 m³
- Grosime perete19 mm
- Înălţime perete lateral192 cm
- Înălţime coamă273 cm
- ConstrucţieSistem de construcţie modulară
- PardosealăDa
- Suprafaţă perete exterior21,8 m²
- Suprafaţă acoperiş9,2 m²
- Grosime acoperiş19 mm
- Greutate zăpadă1,6 kN/m²
- Pazie faţă19 cm
- Pazie lateral20 cm
- Pazie spate19 cm
- Înclinare acoperiş22,5 °
- Material învelitoare acoperişFără
- Material acoperişLemn adevărat
- Cofraj acoperişScânduri cu caneluri
- Necesar şindrilă (pachet cu conţinut 3 m²)4
- Necesar şindrilă în m²10,5
- CaracteristiciOrientare acoperiş variabilă, Cu posibilitate de montare inversă
- Tip produsCăsuţă de grădină
- ModelMagazie pentru echipamente
- Domeniu de utilizareMaşini de grădinărit, Mobilier grădină, Unelte de grădină, Vehicule pe două roţi
- Culoare de bazăGri
- NuanţăGri deschis
- Dotare de seriePardoseală, Dulap modular, Oberlicht
- SerieStudio
- Formă acoperişAcoperiş în trepte
- MaterialLemn
- Detalii materialRășinos
- Suprafață/tratare suprafațăLazurat
- Impregnat în autoclavăNu
- Sticlă geamuriSticlă
- Număr de ferestre1 fereastră simplă
- Număr de geamuri ce se pot deschide0
- Tip uşăUşă dublă
- Lăţime trecere137 cm
- Înălţime trecere188 cm
- Sticlă uşăSticlă securizată
- Dotare de siguranţăÎncuietoarea cu butuc cilindric
- Număr încăperi1
- Greutate376 kg
- Cod scurt de produs (AKN)YHXK
- EAN4742686001365
Certificate & servicii
Fișe de date
Descriere
Foarte mult spațiu de depozitare pe o suprafață mică: aceasta este dorința iubitorilor de grădini. În sfârșit, mai mult spațiu pentru unelte și mașinile de grădinărit – la adăpost confortabil și sigur. Caracteristicile de produs ale căsuței de grădină Konsta Studio Set 2 cu pardoseală și dulap modular 290x202 cm gri deschis Iată de ce vă recomandăm să o achiziționați: Căsuța de grădină Konsta Studio Set 2 este fără îndoială atracția grădinii dumneavoastră. Cu dimensiunile de montare fără pazie de 290 x 202 centimetri, căsuța de grădină îmbină designul elegant cu un spațiu maxim de depozitare. Căsuța construită în sistem cu componente are o grosime a pereților de 19 milimetri. Pardoseala este inclusă în pachetul de livrare. Pe lângă toate piesele, în pachetul livrat sunt incluse un set de fixare, feroneria și cartonul de acoperiș pentru prima acoperire. Căsuța de grădină Konsta Studio Set 2 este ușor de construit. Se realizează cel mai bine în echipă de doi. Pentru montajul ferestrelor din sticlă, trebuie să vă asigurați că aveți silicon la îndemână. De altfel, căsuța de grădină poate fi construită și invers, în imaginea din oglindă. Acest lucru vă oferă mai multă libertate în privința locului și modalității de amplasare a spațiului de depozitare pentru uneltele din grădină. Prin fereastra mare, căsuța de grădină primește suficientă lumină chiar și în colțurile întunecate. Căsuța Konsta Studio Set 2 este prevăzută cu o prelungire a acoperișului. Sub acesta, un dulap de perete suplimentar asigură și mai mult spațiu de depozitare. În total, puteți conta pe 10,65 metri cubi de spațiu disponibil pentru a fi umplut. Prin înclinarea acoperișului de 22,5°, căsuța de grădină Studio Set 2 este bine echipată chiar și în iernile cu zăpadă abundentă. Acoperișul în trepte poate rezista la o greutate a zăpezii de 1,6 kilonewtoni pe metru pătrat. Dacă doriți, puteți acoperi acoperișul cu șindrilă. Necesarul de șindrilă este de 12 metri pătrați. Mașinile pentru grădină mai mari, mobilierul de grădină sau bicicletele pot fi depozitate cu ușurință datorită ușii duble mari. Căsuța de grădină în culoarea antracit este echipată cu o încuietoare tip cilindru profil. Încuiați-vă căsuța din molid și bucurați-vă că lucrurile dumneavoastră sunt depozitate în siguranță. Lângă dulap veți găsi suficient spațiu acoperit pe care să îl puteți folosi pentru stivuirea lemnului sau pentru butoaiele de apă. Căsuța de grădină Konsta Studio Set 2 asigură o depozitare simplă și versatilă. În concluzie: cu acoperișul în trepte și spațiul extins de depozitare pe o suprafață mică, căsuța Konsta Studio Set 2 reprezintă atracția grădinii dumneavoastră.
Siguranța produselor
Pentru informații cu privire la siguranța produselor, consultați .
Recenzii din partea clienților
Nu garantăm că toate recenziile provin de la persoane care au utilizat sau achiziționat acest produs. Pentru mai multe informații privind prelucrarea recenziilor, vă rugăm să consultați secțiunea corespunzătoare din Termeni și condiții generale.

